您现在的位置是:首页 > 牙齿美白知识
总投资超8亿元,天津市口腔医院梅江院区增建工程启动建设计划!
皓齿牙科网
2024-12-30【牙齿美白知识】175人已围观
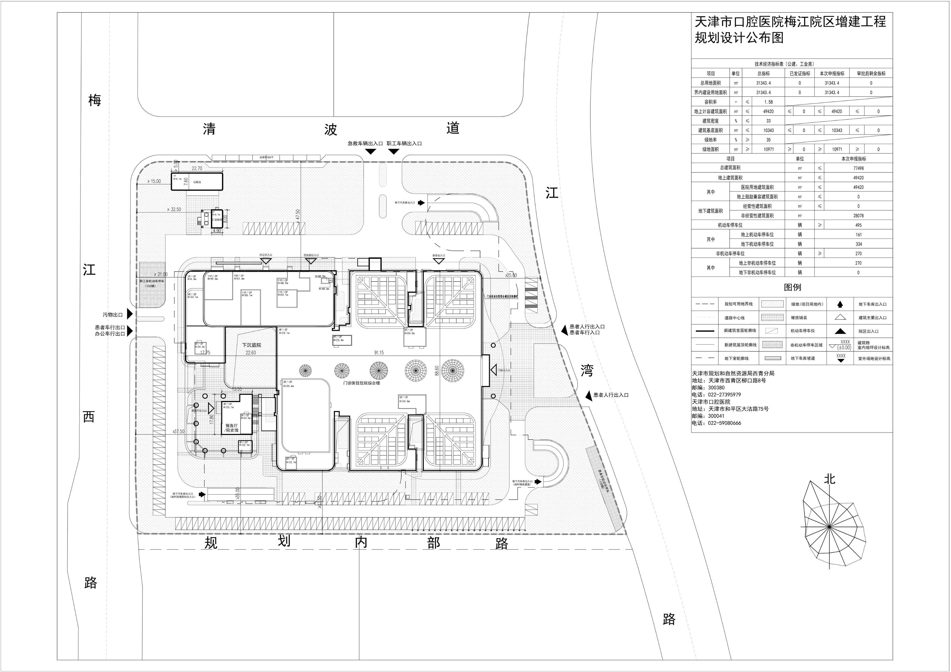
简介近日消息,总投资超8亿元的天津市口腔医院梅江院区增建工程启动建设计划。项目位于天津市西青区津门湖街-梅江西路与清波道交口附近,建设规模为77498平方米,主要包括新建门诊医技住院综合楼及附属用房,总投资额84183.13万元。本次启动的是天津市口腔医院梅江院区增建工程施工总承包,计划工期要求2023...
近日消息,总投资超8亿元的天津市口腔医院梅江院区增建工程启动建设计划。

项目位于天津市西青区津门湖街-梅江西路与清波道交口附近,建设规模为77498平方米,主要包括新建门诊医技住院综合楼及附属用房,总投资额84183.13万元。本次启动的是天津市口腔医院梅江院区增建工程施工总承包,计划工期要求2023年10月31日至2026年10月31日。

据此前消息,天津市口腔医院梅江院区增建工程项目,规划设置床位150张、综合治疗台300台,计划年内开工建设。(综合自天津建设工程信息网、天津市规划和自然资源局、津云)
很赞哦!(45)
下一篇:~一颗牙齿一